Anmelden
Gallery MeineGemeinde Weiler Weiler Weiler Lochau SV typico Lochau: Sportheim-Zubau mit Spieler-Kabinen-Trakt genehmigt Fu__ball SVL ERWEITERUNGSBAU Kabinentrakt BAUVERHANDLUNG 11-12-2024 _9_.jpg
Erweiterte Suche
Diashow ansehen Download Photo (1024 x 542) Download Photo (1600 x 847) RSS-Feeds für dieses Photo

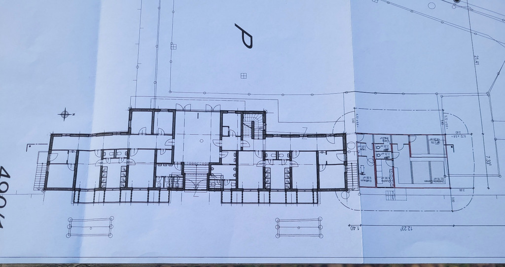
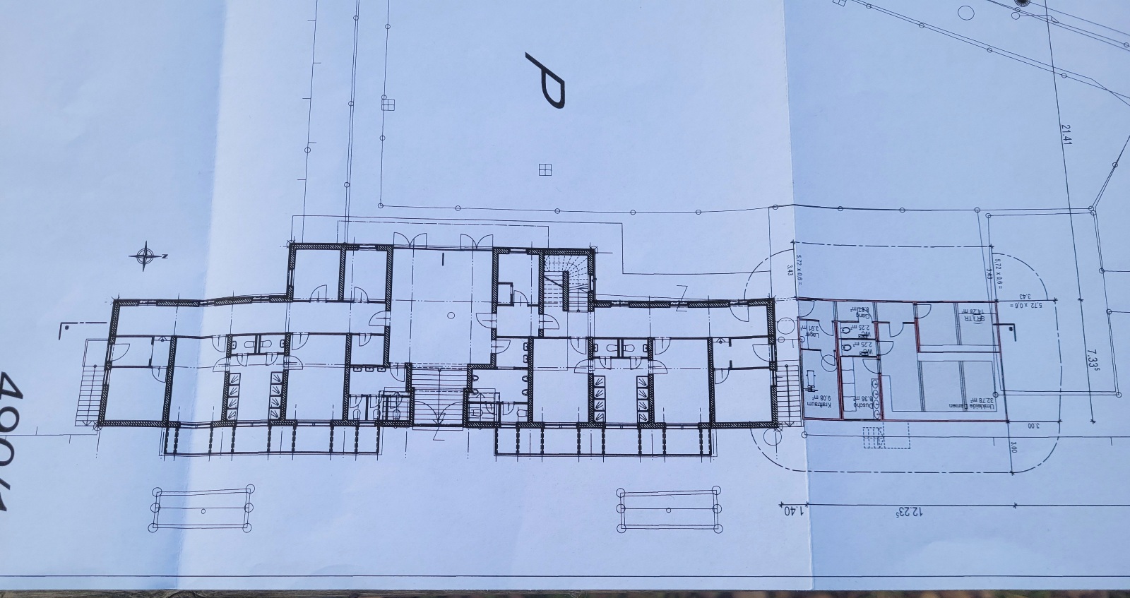
SV typico Lochau: Sportheim-Zubau mit Spieler-Kabinen-Trakt genehmigt

1. BU 4a... ... 5. BU 4b... 6. BU 4c... 7. BU 2b... 8. Fu__ball... 9. Fu__ball... 10. Fu__ball... 11. BU 5... ... 14. BU 7...

Planungsunterlagen für den Neubau eines Kabinentraktes als Zubau beim Clubheim des SV typico Lochau im Stadion Hoferfeld.

Datum: 06.02.2025
Größe:
Vollgröße: 1600x847
nächsteletzte
erste vorherige
Fu__ball SVL ERWEITERUNGSBAU Kabinentrakt BAUVERHANDLUNG 11-12-2024 _9_.jpg
nächsteletzte
erste vorherige
Powered by Gallery v2.3