Anmelden
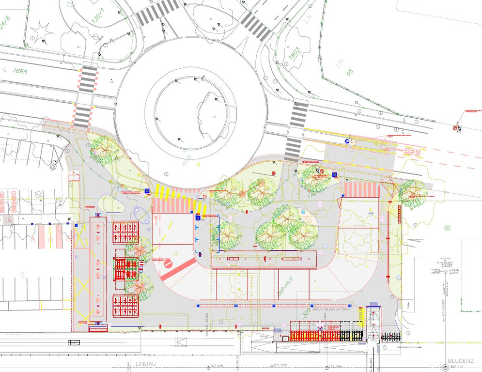
Gallery MeineGemeinde Weiler Weiler Weiler Lochau Die Arbeiten am neuen Vorplatz beim Lochauer Bahnhof laufen auf Hochtouren Ausschnitt_Bahnhofsvorplatz.jpg
Erweiterte Suche
Diashow ansehen Download Photo (1100 x 849) Download Photo (995 x 768) RSS-Feeds für dieses Photo

Die Arbeiten am neuen Vorplatz beim Lochauer Bahnhof laufen auf Hochtouren

1. 20240308_Ba... 2. 20240308_Ba... 3. 20240308_Ba... 4. 20240308_Ba... 5. Ausschnitt_... 6. Gr__nfl__ch...
Datum: 12.03.2024
Größe:
Vollgröße: 1100x849
nächsteletzte
erste vorherige
Ausschnitt_Bahnhofsvorplatz.jpg
nächsteletzte
erste vorherige
Powered by Gallery v2.3