Anmelden
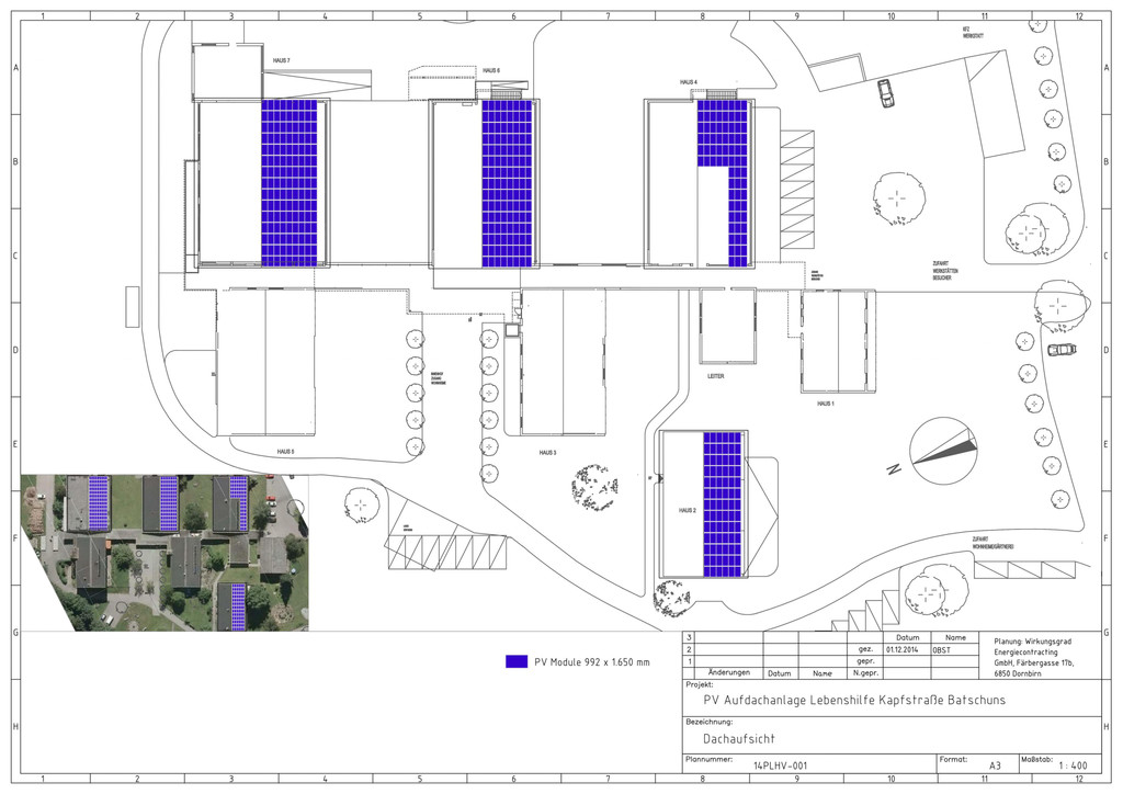
Gallery MeineGemeinde Zwischenwasser Ökostrom für die Lebenshilfe Batschuns 04 Dachaufsicht Lebenshilfe iOf - A3_01.jpg
Erweiterte Suche
Diashow ansehen Download Photo (1024 x 724) Download Photo (4096 x 2895) RSS-Feeds für dieses Photo

Ökostrom für die Lebenshilfe Batschuns

1. Montage... 2. Montage... 3. 04... 4. PV Anlage... 5. muntlix11.jpg 6. muntlix12.jpg 7. Kapfstra__e...
Datum: 24.07.2015
Größe:
Vollgröße: 4096x2895
nächsteletzte
erste vorherige
04 Dachaufsicht Lebenshilfe iOf - A3_01.jpg
nächsteletzte
erste vorherige
Powered by Gallery v2.3